当商品は見積対応商品です。設置距離に応じたお見積りを作成いたします。
※最小距離50m~/10m単位でのご案内が可能です。
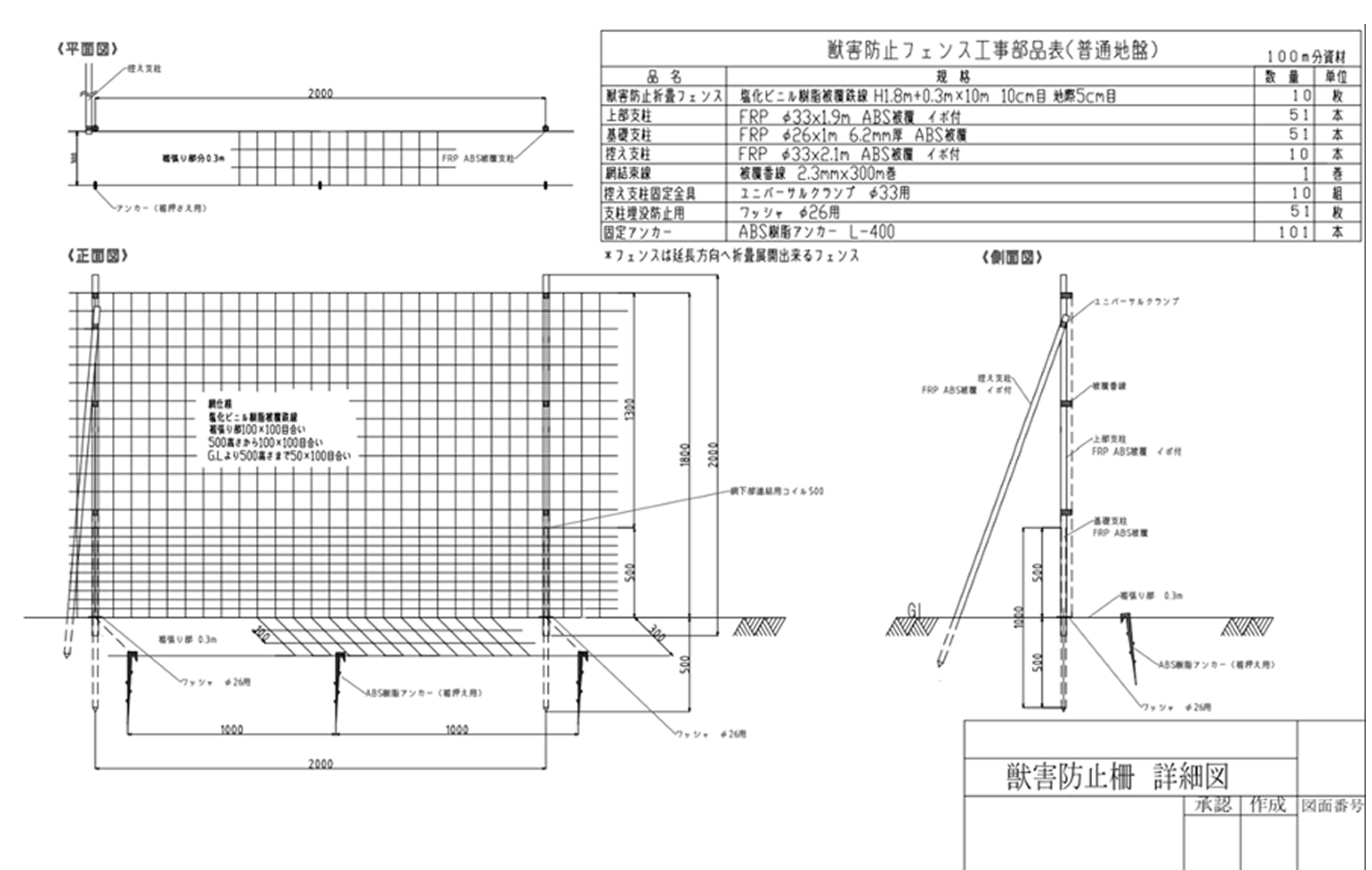
フェンス高さ (※門扉の高さでは ありません)
| 製品内容
| 門扉規格 (幅×高さ)
| 参考価格 (税込)
|
| 1.2m |
フェンス100m分 資材一式 |
- |
464,002円 |
| 専用門扉 片開き |
幅0.9m × 高さ1.8m |
19,514円 |
| 1.8m |
フェンス100m分 資材一式 |
- |
547,602円 |
| 専用門扉 片開き |
幅0.9m × 高さ1.8m |
20,614円 |
| 専用門扉 両開き |
幅1.8m(幅0.9m×2枚) × 高さ1.8m |
41,228円 |
※フェンス高に関わらず、門扉の高さは1.8mの共通規格となります。
※フェンス高1.2mについては、片開き門扉のみのご案内となります。
※別途送料がかかります。送料を含めたお見積もりを作成させていただきます。
|
環境に溶け込む景観配慮のNEW防除フェンス
※パタサクは、2025年に仕様が変更になり、主な変更点は下記の通りです。
・パタサク本体:被覆線がこれまでの4層構造(鉄線+メッキ被膜+接着層+被覆)から3層構造(鉄線+接着層+被覆)に変更。強力な接着層であり、メッキフリーですがこれまでの4層構造と同等以上の耐食性能があります。
・柱関係:これまでの被覆鋼管からFRP素材に変更。柱の止め具はワンタッチクリップから連結用被覆番線(結束線)に変更。控えはワンタッチクリップクロスからミニクランプをに変更。
・門扉:線径φ6からφ5に変更。サイズW1.05m×H2.05mからW0.9m×H1.8mに変更。扉の網目がすべて10cm×10cmに変更。
※上記仕様図は、一部旧仕様(連結用コイル)の内容が含まれています。新仕様では連結用コイルを使用しません。
景観に配慮したブラウン色の防護柵
「パタサク」は、景観に馴染みやすいブラウン色がコーティングされた防護柵です。
「パタサク」が設置されている部分は、樹木や地面の色に溶け込んで、景色に馴染んでいます。
景観保護が求められる地域や柵の色や照り返しが気になる現場にも、「パタサク」がおすすめです。
資材が軽くて、持ち運びラクラク!
「パタサク」の資材は、軽くて柔軟性があります。
本体フェンスは折りたたまれた状態で、コンパクト梱包で納品されます。
1梱包10mあたり13kg(高さ1.2m規格)と軽量のため、とても運びやすいのも特徴です。
どの資材も1人で持ち運びが可能です。
設置がとても簡単です!
|
セパレート式支柱で打ち込みが簡単です。※高さ1.8mのみ
|
最初に打ち込み支柱を約2m間隔で50cm打ち込みます。
次に、打ち込んだ打ち込み支柱へ、ワッシャー+被せ支柱をセットします。
打ち込み支柱は基礎工事不要で地面に直接打ち込むため、コンクリートやモルタルといった基礎部材が必要ありません。
|
|
折りたたみ式なので、施工性に大変優れています。
|
折りたたまれている本体フェンスを広げます。
ロールフェンスとは違いフェンスに巻きぐせがついていないので、
広げてすぐに設置をすることができます。
|
※パタサクを広げ、地際の折り返し部分を折り曲げます。
地際の折り返しは、靴で踏みながら折り曲げてください。
|
|
連結用被覆番線(結束線)で、取付が簡単です。
|
支柱に控え支柱を取り付け、スタート地点の支柱へパタサクを結束線で固定します。パネル折り返し部に樹脂アンカーを打ち込めば設置完了です。
「パタサク」の設置には特別な工具を使用しないため、ハンマーやペンチ、ハッカーやスコップなどのホームセンターで購入できる工具があれば、どなたでも楽に設置をすることができます。
短期間でフェンスを設置したい場合や、費用を抑えてフェンスを設置したい場合にとても役立ちます。
|
しっかり防ぐ!イノシシ対策・シカ対策に効果的です
樹脂コーティング鉄線をしっかり編み込んでいるので、網目はズレにくい構造になります。
地上から50cmまでは、目合いが細かく(5cm間隔)なっているため、ウリボウなどの小さな動物の侵入も防ぐことができます。
※オプションの門扉は目合がすべて10cm間隔となり、ウリボウなどの小さな動物に侵入される可能性があります。
「パタサク」施工実績


